
Lot 80 - Abergeldie Standalone Townhouses
Ultimate Modern Living
Discover the perfect blend of comfort and modern design with the Lot 80 Standalone Townhouses Package. This single-level home has been thoughtfully designed to maximise space and functionality, making it ideal for couples, downsizers, or small families.
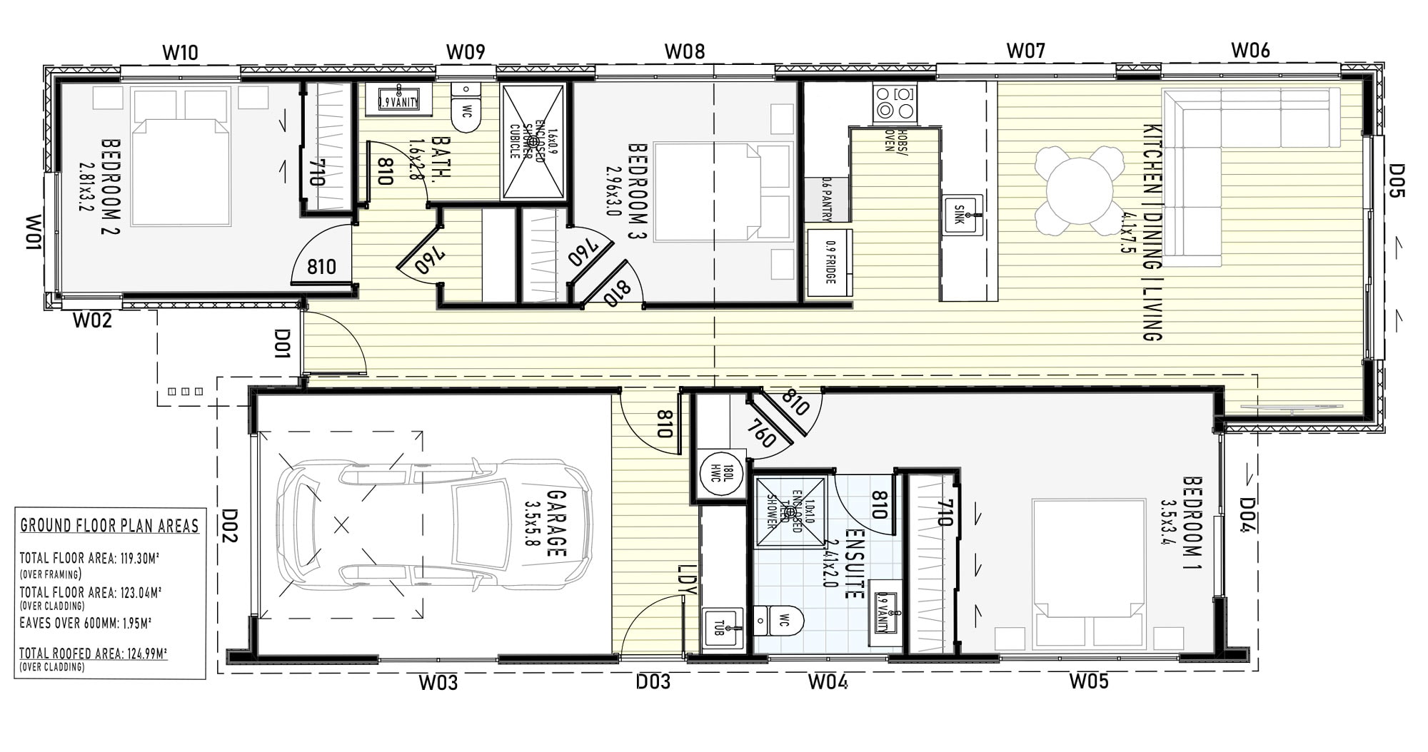
With a floorplan size of 123 sqm on a 250 sqm section, the layout offers a well-balanced combination of indoor and outdoor living. The home features three well-appointed bedrooms and two modern bathrooms, including a master bedroom with a private ensuite. A 2.4m stud height throughout enhances the sense of space and natural light.
The open-plan kitchen, dining, and living area creates a welcoming central hub, flowing seamlessly to the outdoor area — perfect for relaxed everyday living or entertaining. Practical storage solutions are incorporated throughout the home, along with a single-car garage providing secure internal access.
Payment options are available - some conditions may apply. Images are the artist’s impression only.
For more information including a full inclusions list, contact:
Kirsten | sales@zbhomes.co.nz
Features
123m²
- Master bedroom ensuite with shower and toilet
- Storage cupboards
- Open-plan kitchen, living and dining area
- Laundry located on the back wall of the single garage
- Single garage
Floor Plan

