
Lot 63 - Abergeldie Estate Standalone
A Blend of Style and Comfort
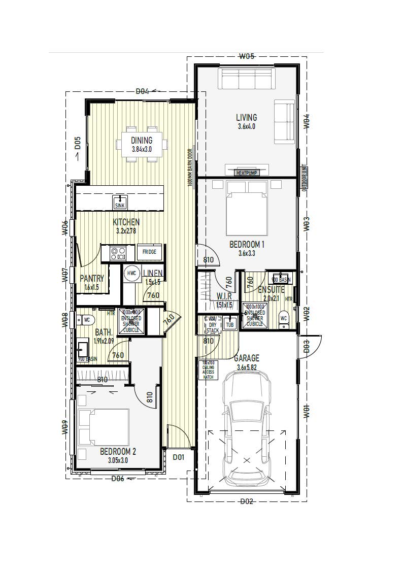
Welcome to Lot 63—a standalone home package that promises to turn your lifestyle vision into reality. This charming single-floor residence invites you to step into a world of comfort and convenience, designed with both style and practicality in mind. Picture kicking off your day in one of two stylish bedrooms, each offering a private escape.
The two modern bathrooms make mornings a breeze, setting you up for a productive day ahead. The heart of this home is its open-plan living area that flows into a thoughtfully designed kitchen, complete with a walk-in pantry. Prepare meals and effortlessly move between the kitchen and backyard, where sliding doors create a cozy, inside-outside oasis perfect for entertaining or relaxing.
With a single-car garage, you'll have easy access to your vehicle, all while benefiting from the security of your own space. Lot 63 stands as a testament to quality and value—a home where your memories will be made, cherished, and shared.
Payment options are available - some conditions may apply. Images are the artist’s impression only.
For more information including a full inclusions list, contact:
Kirsten Chisholm | | sales@zbhomes.co.nz
Features
119m²
- 2 Bedrooms
- Walk in closet
- 2 Bathrooms
- Breakfast bar style kitchen and walk in pantry
- Open-plan kitchen, living, and dining area, heat pump in the living room
- Large sliding doors to the backyard
- Single garage
Floor Plan

