
Lot 48 / 3 Tapsell Lane Peakedale Matamata
For Sale
Find your Place in Peakedale!
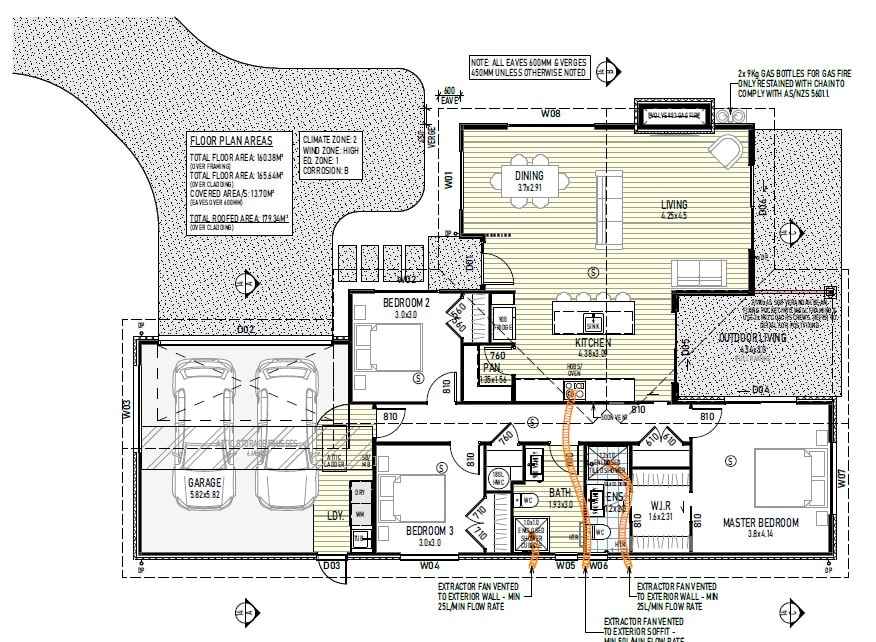
Your new ZB Home at Lot 48 Peakedale will be ready by May/June 2026. Elevated sections with spectacular views of the Kaimai Ranges and proximity to walking and biking tracks. This 3 bedroom home is perfect for downsizers or family living with a well designed outdoor entertaining area.
- 3 bedrooms with double wardrobes
- Master bedroom has a large walk-in wardrobe and tiled ensuite with level entry shower
- Main bathroom features a 1m x 1m shower and 900mm vanity
- Designer Kitchen with stone benchtops, and walk in pantry with loads of storage
- Bosch appliances
- Double internal access garage (insulated) with custom inbuilt laundry
- Gas Fire
- Quality floor coverings
- Lawns, concrete driveway, patios and fencing included
Contact Kirsten Chisholm | | sales@zbhomes.co.nz
Some conditions may apply. Image is artist’s impression only and photos are from previous ZB Homes builds.
Features
Floor Plan 179,34m²
- 3 Bedrooms
- Tiled Ensuite
- Walk in Closet
- Designer Kitchen
- Landscaping Included
- Fencing included
- Gas Fire
- Double garage insulated
Floor Plan


Land: 666m²
3
2
2
$889,000