
Lot 52, 44 Acacia Avenue
Beautiful Views of Pirongia Mountain
This soon to be built home is in the ideal position being elevated with lush North, West rural views looking out to Mt Pirongia & Mt Kakepuku.
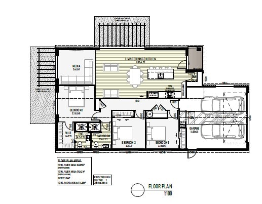
This custom designed plan features 3 double bedrooms, 2 living, 2 bathrooms (including an ensuite off the master) designer kitchen, walk in pantry, custom inbuilt laundry and a double garage (with heaps of attic storage!) With a 2.55m ceiling height and 2.2m high internal doors this house will feel even more spacious!
Enjoy the easy indoor-outdoor flow from 2 living areas accessing outside by large sliders to the north facing entertaining areas.
This stylish home will be completed by March 2026. This new build will be nestled down a private driveway in Haultain Estate, a new subdivision in Kihikihi overlooking the prestigious Golf Rd and beyond. Only a 2 min drive to Te Awamutu, which boasts a dynamic village culture, and only a 20 minute drive to the faster paced Hamilton City.
Get in touch now! Please email to get a full list of specifications of what is included in this great price! Some conditions may apply. Image is artist’s impression only.
Features
170m²
- 3 Bedrooms
- 2 Bathrooms
- 2 Living area
- 771m² Land
- 170m² Floor
- 2 Garage parking
Floor Plan

 
				


 
													 
													 
													 
													 
													