Smart 70m² Living.
Compact Living. Full-Sized Quality.

Unlock the Potential on Your Property

70m² Homes Waikato

Smart, Consent-Free Living Built Onsite by ZB Homes

Build a fully self-contained 70m² home on your property – without the need for building consent.

Thanks to new New Zealand legislation coming into effect in 2026, homeowners can now build self-contained homes up to 70m² without a building consent, provided they meet NZ Building Code standards and council notification requirements.

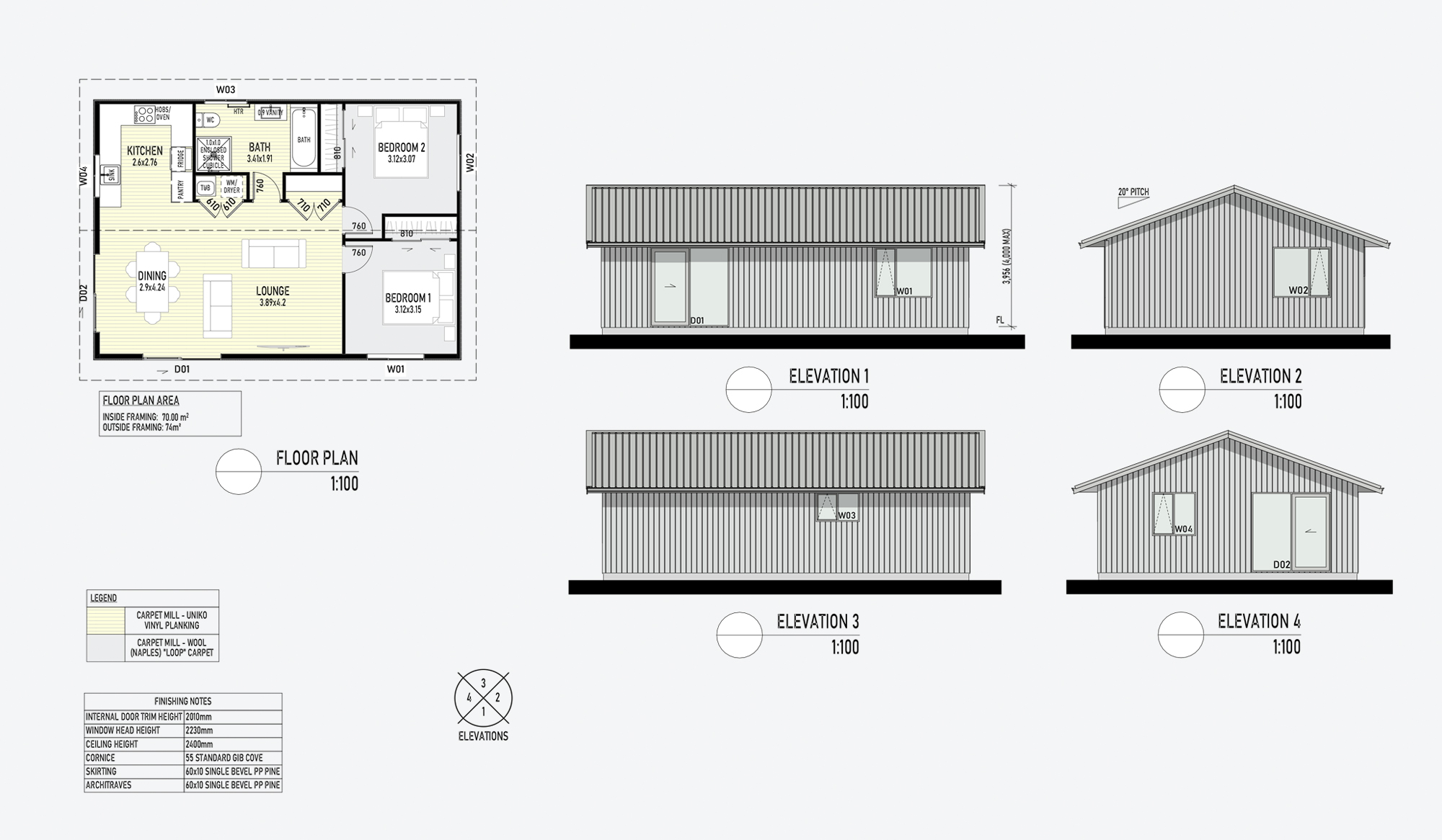
At ZB Homes, we design and build high-quality 70m² homes onsite across the Waikato, offering a smarter, faster, and more affordable way to add a second home to your property — without compromising on comfort, compliance, or build quality.

  • Ideal for first home buyers, families, and rental income.
  • Built onsite – not transportable or prefabricated.

What Is a 70m² Home?

A 70m² home (often referred to as a granny flat or minor dwelling) is a fully self-contained standalone house that includes everything you need for comfortable everyday living.

With smart design, a 70m² home can include:

  • 2–3 bedrooms
  • A full kitchen
  • Appliances
  • Bathroom
  • Open-plan living and dining
  • Storage and laundry space
  • Wardrobes

These homes are compact, efficient, and designed to make the most of every square metre — perfect for modern living, extended family, or tenants.

New 2026 Legislation: Build Without Building Consent

Under new government legislation announced in 2024 and coming into effect in 2026, homeowners can build standalone dwellings up to 70m² without applying for a building consent, provided:

  • The home complies with the NZ Building Code
  • It is a simple, single-storey design
  • Construction is carried out or supervised by Licensed Building Practitioners
  • Council notification requirements are met

This removes a major barrier for homeowners by reducing approval time, complexity, and costs — while still ensuring safety and quality standards are met.

ZB Homes manages this process with you, ensuring your 70m² home is designed, built, and documented correctly from day one.

Built Onsite – Not Transportable Homes

It’s important to know:
ZB Homes does NOT build transportable or prefab homes.

Your 70m² home is:

  • Built onsite on your property
  • Constructed on permanent foundations
  • Designed to suit your section, orientation, and access
  • Built to the same standard as our full-size homes

Building onsite allows for better design flexibility, stronger construction, and seamless integration with existing services — resulting in a true home, not a temporary solution.

Who Are 70m² Homes Perfect For?

First Home
Buyers

A 70m² home can be an affordable entry into home ownership, especially when built on family-owned land or a suitable section. You get a brand-new, compliant home without the cost of a large build.

Families & Multi-Generational Living

Create a private, comfortable home for:
- Adult children
- Elderly parents
- Extended family members
A 70m² granny flat provides independence while keeping family close.

Property Owners
& Investors

Add a second dwelling to your property and create:
- Rental income
- Increased property value
- Long-term flexibility
With up to 2–3 bedrooms and full amenities, these homes are highly attractive to tenants.

Designed for Waikato Sections

ZB Homes builds 70m² homes across the Waikato, including Cambridge, Te Awamutu, Hamilton, and surrounding areas.

Every site is different — which is why we take the time to understand:

  • Section size and shape
  • Access and services
  • Orientation and sunlight
  • Council requirements

We then design a home that works with your land, not against it.

Why Build Your 70m² Home With ZB Homes?

  • Over 20 years of building experience in Waikato
  • Licensed Building Practitioners
  • Member of the Master Builders Association
  • Backed by a 10-Year Master Build Guarantee
  • Clear communication from start to finish
  • Proven design & build process

At ZB Homes, we’re known for building quality homes and making the process clear, honest, and stress-free — whether it’s a large family home or a compact 70m² build.

Our Process – Simple & Supported

  1. Initial Discussion – Understand your goals, section, and intended use
  2. Design & Feasibility – Tailored layout options to suit your site
  3. Compliance & Planning – Ensure Building Code and council notification requirements are met
  4. Build Onsite – Managed by our experienced local team
  5. Handover – A completed, compliant, move-in-ready home

Ready to Explore a 70m² Home?

Whether you’re thinking about a granny flat, a first home, or a rental opportunity, a 70m² home could be the smartest move you make.
Make an Enquiry today to discuss your section, ideas, and next steps with the ZB Homes team.
Let’s talk about what’s possible on your property.